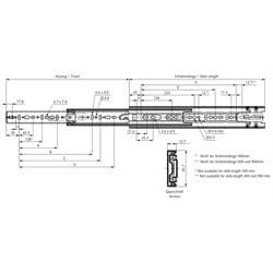
Teleskopické výsuvy DZ 3832 SC, šírka 12,7 mm, do 50 kg, plné vysunutie, samozatváranie
Material: Slide elements: Cold rolled steel, zinc-plated or coated. Ball retainers: Plastic / zinc-plated steel. Balls: Hardened steel.
Telescopic ball bearing precision slides for applications in the industrial and electronics sector.
Sold by pair (1 x product no. = 1 pair of slides).
- Fast disconnection.
- Self-close.
- Hold-in in closed position.
- Cam drawer adjust (3.1 mm).
- Version zinc-plated, either bright or black, or painted white.
- Optional clip-on brackets available.
- Service life 10,000/ 80,000 cycles.
- Temperature range: -20°C to +70°C.
- Closing / opening force 14 - 27 N per slide.
- Alternative: Type HDSC with higher force 27 - 41 N.
Note:
Recommended fastening: M4 screw.
Use all mounting positions to achieve the max. load ratings.
Horizontal mounting is not recommended.
| SKU | Type | Typ | Rail Length [mm] | Extension +/- 3,2 [mm] | A [mm] | B [mm] | C [mm] | D [mm] | E [mm] | F [mm] | Load Value / Pair [kg] | Weight / Pair [kg] |
|---|---|---|---|---|---|---|---|---|---|---|---|---|
| 64901430 | hell verzi | DZ3832-0030SC | 300 | 286 | - | - | - | 231 | - | - | 48 / 42 | 0,90 |
| 64901435 | hell verzi | DZ3832-0035SC | 350 | 356 | - | - | - | 281 | - | - | 49 / 43 | 1,04 |
| 64901440 | hell verzi | DZ3832-0040SC | 400 | 406 | - | - | - | 331 | 288 | - | 50 / 44 | 1,20 |
| 64901445 | hell verzi | DZ3832-0045SC | 450 | 457 | - | 320 | - | 381 | 320 | - | 50 / 45 | 1,33 |
| 64901450 | hell verzi | DZ3832-0050SC | 500 | 508 | - | - | - | 431 | 384 | - | 50 / 45 | 1,50 |
| 64901455 | hell verzi | DZ3832-0055SC | 550 | 559 | - | 416 | - | 481 | 416 | - | 50 / 45 | 1,67 |
| 64901460 | hell verzi | DZ3832-0060SC | 600 | 610 | 224 | 416 | - | 531 | 352 | 480 | 50 / 45 | 1,82 |
| 64901465 | hell verzi | DZ3832-0065SC | 650 | 660 | 224 | 416 | 544 | 581 | 352 | 512 | 49 / 44 | 1,96 |